Residential
Concept+Design
Retail
home
Residential
Concept+Design
Retail
home
/
Residential
/
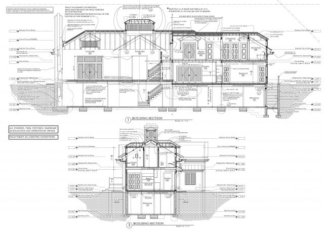
Wayside
Wayside
Historic District In Construction